MizTia Respect -
Desain Rumah Minimalis |
Denah Rumah Minimalis |
Gambar Rumah Minimalis
.
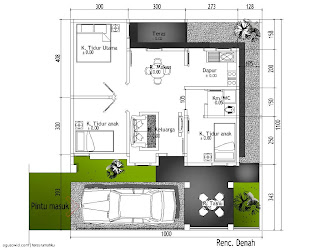
Bagi sobat yang sedang ingin membuat sebuah rumah minimalis tapi
masih bingung dengan denah rumahnya, berikut ini contoh gambar denah
rumah minimalis (type 60)
dengan kamar 3 buah.
Detail denah rumah type 60:
Tanah =
8,5 m x 12 m / 102 m2, 3
Ruang tidur, 1
Ruang makan, 1
Ruang tamu, 1
Toilet, 1
Dapur
Desain Kamar Tidur minimalis modern.
Ada sejumlah ide besar dalam gaya untuk membuat desain kamar tidur,
banyak orang menyukai desain seperti tradisional atau ruang bertema
romantis yang dapat kita buat dengan beberapa furnitur.
Denah Rumah Minimalis
 |
| Denah Rumah Minimalis 8 x 12 m |
 |
| Denah Rumah Minimalis 10 x 11 M |
 |
| Denah Rumah Minimalis 6 x 12 |
 |
| Denah Rumah Minimalis 2 Kamar |
 |
| Desain Rumah Minimalis 2 Kamar |
 |
| Denah Rumah Minimalis 2 Lt |
 |
| Denah Rumah Minimalis Ukuran tanah 12 x 12 |
 |
| Gambar Bangunan dan Denah Rumah Minimalis 2 Kamar |
 |
| Denah Rumah Minimalis Ukuran Tanah 9 x 12 m |
 |
| Gambar bangunan Dan Denah Rumah Minimalis |
 |
| Denah Rumah Minimalis 11 x 11 m |
 |
| Desain Denah Rumah Minimalis 2 lt |
 |
| Desain Denah Rumah Minimalis 2 Kamar |
referensi : www.desainrumahdp.com/denah-rumah/denah_rumah_minimalis
0 Comment:
Post a Comment
* ) Referensi, bisa sobat lihat/baca/kunjungi alamat web/blog di bawah artikel halaman ini atau bagian footer blog ini.
** ) Beritahu jika ada link rusak "Broken Link", atau kesalahan dalam penulisan.
*** ) Terima kasih sudah berkomentar dengan sopan dan bijak :) .